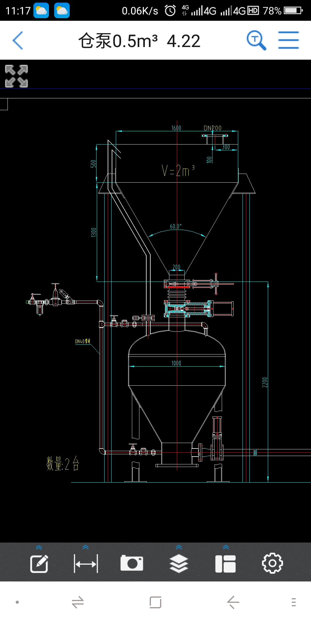
首先說一下本案例濃相系統是給陜西某環保科技有限公司電石渣綜合利用(脫硫劑)項目系統規程。此的輸送量為3t/h輸送距離70m垂直高度為20m

濃相操作步驟
1檢查各氣動元件是否正常;
2檢查電源是否正常;
3檢查儀表和輸送是否正常;
4檢查電器各連接點是否緊固可靠;
5 初步無負荷試車;
6手動操作時必須按操作順序進行操作,否則易造成輸送管道堵塞;2知我者謂我心憂
7先用手動方式檢查各控制點和被控制點是否正確,是否有漏氣現象,并將油霧器中加入潤滑油。觀察氣源壓力是否正常(0.5MPa);
8用自動方式對各控制點和被控制點、PLC控制和對應發送是否正確。

氣力輸送系統試車前的準備與確認
1對裝置進行全面綜合性檢查,確保試運轉及生產運轉的順利進行,操作人員必須做好充分的確認;
2清理周圍的場地,危險品及可燃物都要清理干凈。現場清潔、無雜物、無障礙;
3確認消防設備,滅火設備,火災警報器能正常地工作,事先也要進行滅火訓練;
4裝置內嚴禁閑人進入,在進行特殊操作時,采用安全措施,非工作人員不得入內;
5準備好安全保護器具、氣體檢測器、分析器具、操作用工器具等,以便隨時都可以使用;
6從外部檢查法蘭處的螺栓、螺母、填料,確認螺栓、螺母均已配備齊全;確認在耐壓、氣密試驗時使用的盲板均已被拆除;
7吹掃、清洗、氣密、儀表聯校等已完成;
8人員培訓已完成,崗位工器具已配齊;
9保運工作已落實;機、電、儀維修人員已備齊;
10壓縮氣、空氣系統條件完備;
11電氣、自控系統條件完備;
12現場人員勞保用品穿戴符合要求。
濃相氣力輸送系統操作程序

首先提供一臺倉泵試車,先以手動方式輸灰,注意倉泵內的壓力變化及進料和送料的時間,記錄其參數。然后,自動控制程序根據手動輸送得到的參數進行修正,再利用PLC自動控制程序輸灰,各環節若無異常,最后完成投料試車。
5.2 試車進度表(根據投料試車過程次數填寫下表)
6 發送倉泵投料開車操作

1首先將發送倉泵空試手動運行和投入自動運行,無異常后準備投料;
2再次檢查確認灰庫下方手動放灰閥是否關閉,自動放灰閥是否處在關閉狀態,灰庫頂部排氣閥和除塵器是否運行正常;
3灰庫的料位計是否工作正常,處在零米位置;
4將發送倉泵上面的盲板去掉(有盲板時);
5將發送倉泵上面的手動檢修閥打開;
6以就地手動方式向發送倉泵進灰(第一臺為取平均值可選一臺倉泵五次進灰,其它倉泵不用);
操作步驟為:開排氣閥→開進料閥→等待10-20S(根據流動性確定時間),關進料閥→關排氣閥;輕擊倉泵錐體部位(預測位置),開進氣→待壓力升至0.13-0.15MPa時開排料閥,觀察輸送時的最高壓力值,并記錄輸送時間和輸送壓力,達到下限(大概在0.05MPa左右)時,壓力不再下降表明已經完成輸送過程,關閉進氣閥→關排料閥,并調整進氣閥的調壓閥。
第二次進料,記錄進料時間達到倉泵料位上限,關閉進料閥→關排氣閥待3-5S開進氣閥→待壓力升至0.13-0.15MPa時開排料閥,此時注意觀察輸送時的最高壓力和輸送壓力,待料送完,并調整進氣閥的調壓閥。
第三次進料,記錄進料時間,何時達到料位計顯示料滿,料滿后關閉進料閥→關排氣閥待3-5S開進氣閥→待壓力升至0.13-0.15MPa時開排料閥,此時注意觀察輸送時的最高壓力和輸送壓力,是否和前幾次輸送時基本相同,此時進氣閥的調壓閥調整好后請不要再動,此壓力當調整過高時,可能會出現輸送完畢后倉泵壓力下限過高的現象,如壓力調整過低,則會影響正常輸送,造成輸送管道堵塞。
再重復進料兩次,使發送倉泵的料位計顯示料滿,取這三次進料時間的平均值(略低),并輸入PLC控制系統,若此平均值和原來內部的設定值差別不大,可不必改動,此時手動調試完畢。
7將就地控制箱上的“遠程/就地”旋鈕,旋至遠程,在PLC控制柜觸摸屏中調出相應畫面,在畫面中的“遠程就地”選擇按鈕,點擊“手動/自動”按鈕至“自動”后按壓對應的發送倉泵“投入”按鈕即可進行自動運行,若需要停止運行,則按下對應的“退出”按鈕。
停車操作步驟
待一個輸送單元完成后按退出按鈕,如長期停用切斷電源即可。
可能出現的問題及注意事項
1氣源壓力持續穩定;
2及時清理各儲氣罐,清理電磁閥前儀表氣源分離器中的污物,保持油霧器內部不缺油;
3如果發送倉泵進氣閥組的調壓閥未動,而在送料過程中物料已輸送完畢,而發送倉泵內壓力降不到設定的下限時,其原因是氣源管道中有雜質進入調壓閥內。解決方法為:將調壓閥前面的手動閥關閉,使調壓閥的調壓螺栓全部松開,再將調壓閥下面的螺帽(銅色)卸下,即可看到雜質,用氣吹下即可。
4如果發現輸送管道堵塞時,將此發送倉泵的增壓閥組中的調壓閥的壓力調到0.6MPa以上,并錘擊灰庫下部所對應的輸送管道彎管附近,即可解除堵管,疏通后將增壓閥組中的調壓閥復位。
5在手動輸送時,如果發送倉泵處在進氣和輸送狀態下,不能停止進氣和輸送,否則將造成輸送管道堵塞。
